Menu
Un projet réalisé par :Playtime Agence d'Architecture  Architecte à Lyon

Réunification de deux appartements à la Croix-Rousse

 Lyon - 69
Playtime Agence d'Architecture
Accueil Projets Réunification de deux appartements à la Croix-Rousse

-Commune : Lyon
-Surface: 120 m²
-Budget HT : 190 000 euros

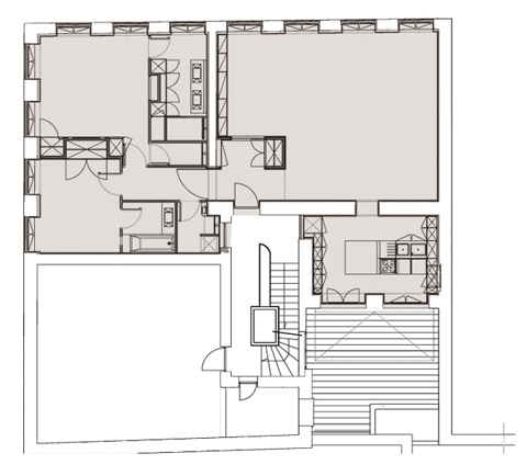
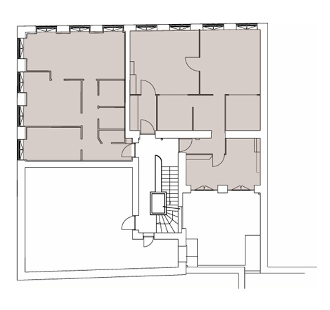
Réunification de deux appartements à la Croix-Rousse

Budget important pour une grosse rénovation et réunion de deux appartements.
Prestations haut de gamme pour un projet très sobre de qualité. Gros travail de détail. Utilisation massive de corian et d'habillages bois laqué après une mise à plat complète des deux appartements précédents.

  • Réunification de deux appartements à la Croix-Rousse : image_projet_mini_5690
  • Réunification de deux appartements à la Croix-Rousse : 02_Réunification Appartements Croix-Rouse
  • Réunification de deux appartements à la Croix-Rousse : 03_Réunification Appartements Croix-Rouse
  • Réunification de deux appartements à la Croix-Rousse : 04_Réunification Appartements Croix-Rouse
  • Réunification de deux appartements à la Croix-Rousse : 05_Réunification Appartements Croix-Rouse
  • Réunification de deux appartements à la Croix-Rousse : image_projet_mini_5695
  • Réunification de deux appartements à la Croix-Rousse : 07_Réunification Appartements Croix-Rouse
  • Réunification de deux appartements à la Croix-Rousse : 09_Réunification Appartements Croix-Rouse
  • Réunification de deux appartements à la Croix-Rousse : 10_Réunification Appartements Croix-Rouse

Trouvez un architecte pour votre projet

Protection de vos données personnelles

Depuis toujours, architectes-france.com ne transfère aucune donnée personnelle à d'autres acteurs que ceux directement concernés par le projet (architectes, architectes d'intérieur...) et qui appartiennent à son réseau. Nos listes ne sont jamais transmises ou vendues à des partenaires extérieurs, même si ceux-ci appartiennent au domaine de la construction.
Toute modification dans ce domaine ne serait effectuée qu'avec votre consentement.

Je consens à ce que mes données personnelles soient collectées pour permettre à architectes-france de transférer votre projet aux architectes. Seul Architectes-france, ses équipes internes et la maitrise d'oeuvre concernée par le projet y ont accès. Aucune transmission de données à des tiers à l'exclusion de ceux décrits ci dessus n'est réalisée.

Mes données téléphoniques seront uniquement utilisées par Architectes-france.com et les architectes de notre réseau dans le cadre de la qualification et du suivi de mon projet.

Les données sont conservées pendant une durée de 18 mois courant à partir des derniers contacts effectifs entre architectes-france et vous ou architectes-france et un membre de la maitrise d'oeuvre en rapport avec ce projet et qui serait en relation avec architectes-france.

Conformément à la loi « informatique et libertés », vous pouvez exercer votre droit d'accès aux données vous concernant et les faire rectifier en contactant : Architectes-france, 23 avenue du Mirail - parc du Mirail - 33370 Artigues-près Bordeaux. Tél. 05.47.74.51.01 - contact@architectes-france.com

Trouvez un architecte pour votre projet

Protection de vos données personnelles

Depuis toujours, architectes-france.com ne transfère aucune donnée personnelle à d'autres acteurs que ceux directement concernés par le projet (architectes, architectes d'intérieur...) et qui appartiennent à son réseau. Nos listes ne sont jamais transmises ou vendues à des partenaires extérieurs, même si ceux-ci appartiennent au domaine de la construction.
Toute modification dans ce domaine ne serait effectuée qu'avec votre consentement.

Je consens à ce que mes données personnelles soient collectées pour permettre à architectes-france de transférer votre projet aux architectes. Seul Architectes-france, ses équipes internes et la maitrise d'oeuvre concernée par le projet y ont accès. Aucune transmission de données à des tiers à l'exclusion de ceux décrits ci dessus n'est réalisée.

Mes données téléphoniques seront uniquement utilisées par Architectes-france.com et les architectes de notre réseau dans le cadre de la qualification et du suivi de mon projet.

Les données sont conservées pendant une durée de 18 mois courant à partir des derniers contacts effectifs entre architectes-france et vous ou architectes-france et un membre de la maitrise d'oeuvre en rapport avec ce projet et qui serait en relation avec architectes-france.

Conformément à la loi « informatique et libertés », vous pouvez exercer votre droit d'accès aux données vous concernant et les faire rectifier en contactant : Architectes-france, 23 avenue du Mirail - parc du Mirail - 33370 Artigues-près Bordeaux. Tél. 05.47.74.51.01 - contact@architectes-france.com