
Restructuration et extension d'un pavillon de 1930
Lyon - 69Rénovation d’une maison d’habitation de 100m² et construction de 60m² en extension.
Nous sommes à Viroflay dans le tissu pavillonnaire des années 1930. La rue Lamartine présente un double alignement d’arbres. Des murs bahuts et des clôtures délimitent les jardins d’entrée. Les constructions y sont implantées en retrait d’alignement et en ordre discontinu laissant alors des vues sur la densité végétale du cœur d’îlot. Les constructions sont faites de brique et de meulière.
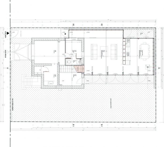
La parcelle de 14 mètres de largeur et de 20 mètres de profondeur accueille le pavillon existant. Il est implanté à 1.40 d’une limite séparative et à 3.60 de l’autre. L’extension s’implante en limite séparative ouest et en fond de parcelle pour préserver les vues de la rue sur le cœur d’îlot. Le salon et la cuisine-salle à manger qu’elle abrite s’ouvrent latéralement sur le jardin vers le sud.
Son volume s’inscrit dans les trois strates du pavillon. D’un seul niveau il offre l’accès direct au jardin tout en répondant au socle de meulière existant.
Un nouvel escalier se glisse dans la bâtisse existante pour desservir l’étage noble. La suppression de la cuisine et du salon a permis la réorganisation des usages privatifs. Les chambres et salle de bains investissent le pavillon préexistant.