Menu
Un projet réalisé par :Pierre DOUCERAIN & Stépahne LIEVRE & Arnaud DELZIANI ARCHITECTES  Architecte à Lyon

Restructuration d'un appartement ancien

 Lyon - 69
Pierre DOUCERAIN & Stépahne LIEVRE & Arnaud DELZIANI ARCHITECTES
Accueil Projets Restructuration d'un appartement ancien

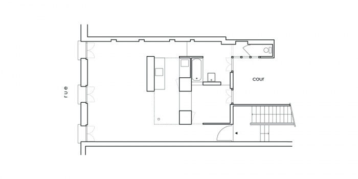
Restructuration d'un appartement entre rue piétonne et cour, au deuxième étage d'un immeuble du XVIIIème siècle

Restructuration d'un appartement ancien

Le projet restitue la volumétrie structurelle initiale : un parallélépipède traversant de 9 mètres de longueur, 6 mètres entre refends et 3 mètres de hauteur.
A l’image des poupées russes un volume plein contemporain s’immisce dans le volume creux existant.
Ces volumétries sont l’écho des usages attendus.
Le creux contient la pièce de vie, il s’ouvre sur la rue.
La cuisine est à l’articulation du creux et du plein.
La chambre et la salle de bain contenues dans le volume plein elles s’ouvrent sur cour.

  • Restructuration d'un appartement ancien : image_projet_mini_26908
  • Restructuration d'un appartement ancien : image_projet_mini_26909
  • Restructuration d'un appartement ancien : 2001-02-durieux_phot pano2
  • Restructuration d'un appartement ancien : image_projet_mini_26912

Trouvez un architecte pour votre projet

Protection de vos données personnelles

Depuis toujours, architectes-france.com ne transfère aucune donnée personnelle à d'autres acteurs que ceux directement concernés par le projet (architectes, architectes d'intérieur...) et qui appartiennent à son réseau. Nos listes ne sont jamais transmises ou vendues à des partenaires extérieurs, même si ceux-ci appartiennent au domaine de la construction.
Toute modification dans ce domaine ne serait effectuée qu'avec votre consentement.

Je consens à ce que mes données personnelles soient collectées pour permettre à architectes-france de transférer votre projet aux architectes. Seul Architectes-france, ses équipes internes et la maitrise d'oeuvre concernée par le projet y ont accès. Aucune transmission de données à des tiers à l'exclusion de ceux décrits ci dessus n'est réalisée.

Mes données téléphoniques seront uniquement utilisées par Architectes-france.com et les architectes de notre réseau dans le cadre de la qualification et du suivi de mon projet.

Les données sont conservées pendant une durée de 18 mois courant à partir des derniers contacts effectifs entre architectes-france et vous ou architectes-france et un membre de la maitrise d'oeuvre en rapport avec ce projet et qui serait en relation avec architectes-france.

Conformément à la loi « informatique et libertés », vous pouvez exercer votre droit d'accès aux données vous concernant et les faire rectifier en contactant : Architectes-france, 23 avenue du Mirail - parc du Mirail - 33370 Artigues-près Bordeaux. Tél. 05.47.74.51.01 - contact@architectes-france.com

Trouvez un architecte pour votre projet

Protection de vos données personnelles

Depuis toujours, architectes-france.com ne transfère aucune donnée personnelle à d'autres acteurs que ceux directement concernés par le projet (architectes, architectes d'intérieur...) et qui appartiennent à son réseau. Nos listes ne sont jamais transmises ou vendues à des partenaires extérieurs, même si ceux-ci appartiennent au domaine de la construction.
Toute modification dans ce domaine ne serait effectuée qu'avec votre consentement.

Je consens à ce que mes données personnelles soient collectées pour permettre à architectes-france de transférer votre projet aux architectes. Seul Architectes-france, ses équipes internes et la maitrise d'oeuvre concernée par le projet y ont accès. Aucune transmission de données à des tiers à l'exclusion de ceux décrits ci dessus n'est réalisée.

Mes données téléphoniques seront uniquement utilisées par Architectes-france.com et les architectes de notre réseau dans le cadre de la qualification et du suivi de mon projet.

Les données sont conservées pendant une durée de 18 mois courant à partir des derniers contacts effectifs entre architectes-france et vous ou architectes-france et un membre de la maitrise d'oeuvre en rapport avec ce projet et qui serait en relation avec architectes-france.

Conformément à la loi « informatique et libertés », vous pouvez exercer votre droit d'accès aux données vous concernant et les faire rectifier en contactant : Architectes-france, 23 avenue du Mirail - parc du Mirail - 33370 Artigues-près Bordeaux. Tél. 05.47.74.51.01 - contact@architectes-france.com