Menu
Un projet réalisé par :Playtime Agence d'Architecture  Architecte à Lyon

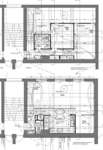
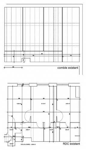
Rénovation d'un appartement Canut

 Lyon - 69
Playtime Agence d'Architecture
Accueil Projets Rénovation d'un appartement Canut

-Commune : Lyon
-Surface : 110 m²
-Budget HT : 176 000 euros

Rénovation d'un appartement Canut

Pari fou: réunir un comble insalubre avec un canut décrépi, obtenir les autorisations de percer la toiture avec des verrières imposantes (zone ABF) et monter jusqu’à 3.80 mètres sans perturber le fonctionnement du projet fini.
La confiance qui s'est instaurée avec les clients a permis de rapidement valider les choix architecturaux et de mettre au point dans un extrême détail le projet.
Un bon dialogue avec la mairie et l'architecte des bâtiments de France a permis de faire accepter le percement des verrières.

  • Rénovation d'un appartement Canut : image_projet_mini_6045
  • Rénovation d'un appartement Canut : 11_Palix canut (2)
  • Rénovation d'un appartement Canut : 11_Palix canut (3)
  • Rénovation d'un appartement Canut : 11_Palix canut (4)
  • Rénovation d'un appartement Canut : 11_Palix canut (5)
  • Rénovation d'un appartement Canut : 11_Palix canut (6)
  • Rénovation d'un appartement Canut : 11_Palix canut (7)
  • Rénovation d'un appartement Canut : 11_Palix canut (8)
  • Rénovation d'un appartement Canut : 11_Palix canut (9)
  • Rénovation d'un appartement Canut : image_projet_mini_6055
  • Rénovation d'un appartement Canut : 11_Palix canut (12)
  • Rénovation d'un appartement Canut : 11_Palix canut (13)
  • Rénovation d'un appartement Canut : 11_Palix canut (14)
  • Rénovation d'un appartement Canut : 11_Palix canut (15)
  • Rénovation d'un appartement Canut : 11_Palix canut (16)
  • Rénovation d'un appartement Canut : 11_Palix canut (17)
  • Rénovation d'un appartement Canut : 11_Palix canut (18)
  • Rénovation d'un appartement Canut : 11_Palix canut (20)
  • Rénovation d'un appartement Canut : 11_Palix canut (21)

Trouvez un architecte pour votre projet

Protection de vos données personnelles

Depuis toujours, architectes-france.com ne transfère aucune donnée personnelle à d'autres acteurs que ceux directement concernés par le projet (architectes, architectes d'intérieur...) et qui appartiennent à son réseau. Nos listes ne sont jamais transmises ou vendues à des partenaires extérieurs, même si ceux-ci appartiennent au domaine de la construction.
Toute modification dans ce domaine ne serait effectuée qu'avec votre consentement.

Je consens à ce que mes données personnelles soient collectées pour permettre à architectes-france de transférer votre projet aux architectes. Seul Architectes-france, ses équipes internes et la maitrise d'oeuvre concernée par le projet y ont accès. Aucune transmission de données à des tiers à l'exclusion de ceux décrits ci dessus n'est réalisée.

Mes données téléphoniques seront uniquement utilisées par Architectes-france.com et les architectes de notre réseau dans le cadre de la qualification et du suivi de mon projet.

Les données sont conservées pendant une durée de 18 mois courant à partir des derniers contacts effectifs entre architectes-france et vous ou architectes-france et un membre de la maitrise d'oeuvre en rapport avec ce projet et qui serait en relation avec architectes-france.

Conformément à la loi « informatique et libertés », vous pouvez exercer votre droit d'accès aux données vous concernant et les faire rectifier en contactant : Architectes-france, 23 avenue du Mirail - parc du Mirail - 33370 Artigues-près Bordeaux. Tél. 05.47.74.51.01 - contact@architectes-france.com

Trouvez un architecte pour votre projet

Protection de vos données personnelles

Depuis toujours, architectes-france.com ne transfère aucune donnée personnelle à d'autres acteurs que ceux directement concernés par le projet (architectes, architectes d'intérieur...) et qui appartiennent à son réseau. Nos listes ne sont jamais transmises ou vendues à des partenaires extérieurs, même si ceux-ci appartiennent au domaine de la construction.
Toute modification dans ce domaine ne serait effectuée qu'avec votre consentement.

Je consens à ce que mes données personnelles soient collectées pour permettre à architectes-france de transférer votre projet aux architectes. Seul Architectes-france, ses équipes internes et la maitrise d'oeuvre concernée par le projet y ont accès. Aucune transmission de données à des tiers à l'exclusion de ceux décrits ci dessus n'est réalisée.

Mes données téléphoniques seront uniquement utilisées par Architectes-france.com et les architectes de notre réseau dans le cadre de la qualification et du suivi de mon projet.

Les données sont conservées pendant une durée de 18 mois courant à partir des derniers contacts effectifs entre architectes-france et vous ou architectes-france et un membre de la maitrise d'oeuvre en rapport avec ce projet et qui serait en relation avec architectes-france.

Conformément à la loi « informatique et libertés », vous pouvez exercer votre droit d'accès aux données vous concernant et les faire rectifier en contactant : Architectes-france, 23 avenue du Mirail - parc du Mirail - 33370 Artigues-près Bordeaux. Tél. 05.47.74.51.01 - contact@architectes-france.com