Menu
Un projet réalisé par :Pascal CORSI ARCHITECTE

Maison d'habitation

Pascal CORSI ARCHITECTE
Accueil Projets Maison d'habitation

Mission Conception et Permis de construire:
La conception retenue est une maison sur un seul niveau, implantée sur la zone nord du terrain et largement ouverte sur le sud et l'ouest pour profiter des paysages et panorama montagneux. Cette implantation et le traitement simple des volumes permettent à cette nouvelle construction moderne de s’intégrer au bâti existant.Le choix technique de la structure acier offre une grande souplesse d'aménagement et permet d'aborder le chantier en prenant compte la préfabrication comme élément non soumis aux aléas météo notamment.

Maison d'habitation

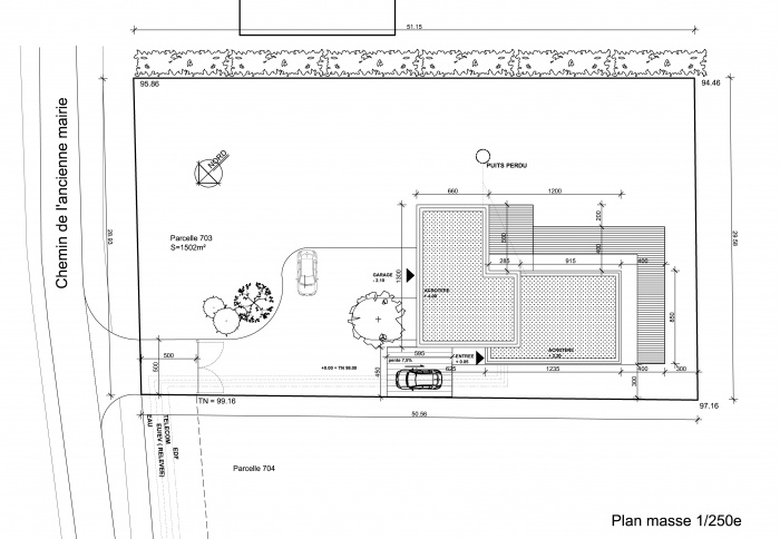
. Le terrain choisi se situe dans la partie sud-est de la commune.
De forme rectangulaire, s’étirant de l’Est vers l’Ouest, il offre un panorama remarquable sur les montagnes et une vue à l’Est sur le Mont-Blanc. La vision de ce paysage est favorisée par une pente moyennement forte d’environ 13%. Ce sont ces caractéristiques et qualités premières qui ont conduit Mr et Mme Jacquelin à se porter acquéreurs de ce terrain.
Le terrain est desservi par le Chemin de l’ancienne Mairie; une entrée spécifique sera donc crée. A ce jour, seules trois constructions peuvent être considérées comme proches tout en étant suffisamment éloignées pour ne pas être en vis-à-vis direct.
La pente général permet d’inscrire le projet en altimétrie moyenne entre les constructions aval et amont.

Insertion dans le paysage
La conception retenue est une maison sur un seul niveau, implantée sur la zone nord du terrain et largement ouverte sur le sud et l'ouest pour profiter des paysages et panorama montagneux. Cette implantation et le traitement simple des volumes permettent à cette nouvelle construction moderne de s’intégrer au bâti existant.
La maison est composée de deux volumes, aux aspects propres et au langage architectural guidé par les fonctions qu’ils abritent. Un premier volume, plutôt fermé, est consacré aux espaces de nuit dont les ouvertures sont tournées principalement vers l’Est. Celui-ci est rehaussé de 60 cm afin de protéger les espaces de jour extérieurs des vents dominants, notamment les terrasses. Cette rehausse permet également au volume du dessous de mieux s’adapter à la topographie en évitant de trop s’enterrer.
Un deuxième volume, très largement ouvert par de larges baies vitrées est consacré aux espaces de jour. Ces larges ouvertures témoignent comme dit précédemment, de la volonté de profiter du paysage et des panoramas. De vastes terrasses permettent de prolonger ces espaces intérieurs vers l’extérieur.
Ces deux volumes ont un traitement de façades différents du fait de leur rapport différent à l’environnement. Le premier est revêtu de plaques de stratifié compact extérieur, dans un camaieu de gris, permettant de proposer une lecture moins monolithique du volume et plus dynamique
Le second, sera de teinte claire, et de par ses larges baies vitrées, offrira une transparence évitant ainsi un trop grand impact et masque pour les avoisinants.
Plus statique, ce volume n’en sera pas moins léger et calme.

  • Maison d'habitation : image_projet_mini_112863
  • Maison d'habitation : 20190303_102527
  • Maison d'habitation : 20190303_102247

Parlez-moi de votre projet

Pascal CORSI ARCHITECTE
Appelez-moi

0608352209

Protection de vos données personnelles

Depuis toujours, architectes-france.com ne transfère aucune donnée personnelle à d'autres acteurs que ceux directement concernés par le projet (architectes, architectes d'intérieur...) et qui appartiennent à son réseau. Nos listes ne sont jamais transmises ou vendues à des partenaires extérieurs, même si ceux-ci appartiennent au domaine de la construction.
Toute modification dans ce domaine ne serait effectuée qu'avec votre consentement.

Je consens à ce que mes données personnelles soient collectées pour permettre à architectes-france de transférer votre projet aux architectes. Seul Architectes-france, ses équipes internes et la maitrise d'oeuvre concernée par le projet y ont accès. Aucune transmission de données à des tiers à l'exclusion de ceux décrits ci dessus n'est réalisée.

Mes données téléphoniques seront uniquement utilisées par Architectes-france.com et les architectes de notre réseau dans le cadre de la qualification et du suivi de mon projet.

Les données sont conservées pendant une durée de 18 mois courant à partir des derniers contacts effectifs entre architectes-france et vous ou architectes-france et un membre de la maitrise d'oeuvre en rapport avec ce projet et qui serait en relation avec architectes-france.

Conformément à la loi « informatique et libertés », vous pouvez exercer votre droit d'accès aux données vous concernant et les faire rectifier en contactant : Architectes-france, 23 avenue du Mirail - parc du Mirail - 33370 Artigues-près Bordeaux. Tél. 05.47.74.51.01 - contact@architectes-france.com

Parlez-moi
de votre besoin
Appelez-moi

0608352209

Protection de vos données personnelles

Depuis toujours, architectes-france.com ne transfère aucune donnée personnelle à d'autres acteurs que ceux directement concernés par le projet (architectes, architectes d'intérieur...) et qui appartiennent à son réseau. Nos listes ne sont jamais transmises ou vendues à des partenaires extérieurs, même si ceux-ci appartiennent au domaine de la construction.
Toute modification dans ce domaine ne serait effectuée qu'avec votre consentement.

Je consens à ce que mes données personnelles soient collectées pour permettre à architectes-france de transférer votre projet aux architectes. Seul Architectes-france, ses équipes internes et la maitrise d'oeuvre concernée par le projet y ont accès. Aucune transmission de données à des tiers à l'exclusion de ceux décrits ci dessus n'est réalisée.

Mes données téléphoniques seront uniquement utilisées par Architectes-france.com et les architectes de notre réseau dans le cadre de la qualification et du suivi de mon projet.

Les données sont conservées pendant une durée de 18 mois courant à partir des derniers contacts effectifs entre architectes-france et vous ou architectes-france et un membre de la maitrise d'oeuvre en rapport avec ce projet et qui serait en relation avec architectes-france.

Conformément à la loi « informatique et libertés », vous pouvez exercer votre droit d'accès aux données vous concernant et les faire rectifier en contactant : Architectes-france, 23 avenue du Mirail - parc du Mirail - 33370 Artigues-près Bordeaux. Tél. 05.47.74.51.01 - contact@architectes-france.com