Menu
Un projet réalisé par :Tilt  Architecte à Toulouse

La Mais'ombrière

 Toulouse - 31
Tilt
Accueil Projets La Mais'ombrière

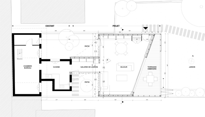
Une parcelle toute en longueur, une petite maison de maraîcher nichée au fond, un grand jardin planté pour oublier la ville environnante, tel est le point de départ de ce projet. Il ne manquait plus qu’une grande pièce à vivre, volume unique largement ouvert sur l’extérieur.
La bâtisse est conservée en l’état, et le projet se glisse dans le jardin comme un pavillon, relié à l’existant par une galerie. Un bardage à claire-voie recouvre l’ensemble, créé une « pièce-terrasse » entre intérieur et extérieur, et sa patine grisée avec le temps se fondra dans la nature.

Surface : 42m2

Début des travaux : Juillet 2009

La Mais'ombrière
  • La Mais'ombrière : image_projet_mini_24379
  • La Mais'ombrière : diapo1
  • La Mais'ombrière : IMG_3995bis
  • La Mais'ombrière : IMG_3992bis
  • La Mais'ombrière : IMG_3941
  • La Mais'ombrière : IMG_3952
  • La Mais'ombrière : 2
  • La Mais'ombrière : 9
  • La Mais'ombrière : 8
  • La Mais'ombrière : IMG_4021
  • La Mais'ombrière : IMG_9588
  • La Mais'ombrière : IMG_3914
  • La Mais'ombrière : IMG_4028
  • La Mais'ombrière : IMG_3913
  • La Mais'ombrière : PLAN-RDC-1-50

    Plan rez-de-chaussée

  • La Mais'ombrière : FACADE-EST-1-50

    Façade Est

  • La Mais'ombrière : FACADE-SUD-1-50

    Façade Sud

  • La Mais'ombrière : COUPE-FACADE-OUEST-1-50

    CouPe Façade Ouest

Trouvez un architecte pour votre projet

Protection de vos données personnelles

Depuis toujours, architectes-france.com ne transfère aucune donnée personnelle à d'autres acteurs que ceux directement concernés par le projet (architectes, architectes d'intérieur...) et qui appartiennent à son réseau. Nos listes ne sont jamais transmises ou vendues à des partenaires extérieurs, même si ceux-ci appartiennent au domaine de la construction.
Toute modification dans ce domaine ne serait effectuée qu'avec votre consentement.

Je consens à ce que mes données personnelles soient collectées pour permettre à architectes-france de transférer votre projet aux architectes. Seul Architectes-france, ses équipes internes et la maitrise d'oeuvre concernée par le projet y ont accès. Aucune transmission de données à des tiers à l'exclusion de ceux décrits ci dessus n'est réalisée.

Mes données téléphoniques seront uniquement utilisées par Architectes-france.com et les architectes de notre réseau dans le cadre de la qualification et du suivi de mon projet.

Les données sont conservées pendant une durée de 18 mois courant à partir des derniers contacts effectifs entre architectes-france et vous ou architectes-france et un membre de la maitrise d'oeuvre en rapport avec ce projet et qui serait en relation avec architectes-france.

Conformément à la loi « informatique et libertés », vous pouvez exercer votre droit d'accès aux données vous concernant et les faire rectifier en contactant : Architectes-france, 23 avenue du Mirail - parc du Mirail - 33370 Artigues-près Bordeaux. Tél. 05.47.74.51.01 - contact@architectes-france.com

Trouvez un architecte pour votre projet

Protection de vos données personnelles

Depuis toujours, architectes-france.com ne transfère aucune donnée personnelle à d'autres acteurs que ceux directement concernés par le projet (architectes, architectes d'intérieur...) et qui appartiennent à son réseau. Nos listes ne sont jamais transmises ou vendues à des partenaires extérieurs, même si ceux-ci appartiennent au domaine de la construction.
Toute modification dans ce domaine ne serait effectuée qu'avec votre consentement.

Je consens à ce que mes données personnelles soient collectées pour permettre à architectes-france de transférer votre projet aux architectes. Seul Architectes-france, ses équipes internes et la maitrise d'oeuvre concernée par le projet y ont accès. Aucune transmission de données à des tiers à l'exclusion de ceux décrits ci dessus n'est réalisée.

Mes données téléphoniques seront uniquement utilisées par Architectes-france.com et les architectes de notre réseau dans le cadre de la qualification et du suivi de mon projet.

Les données sont conservées pendant une durée de 18 mois courant à partir des derniers contacts effectifs entre architectes-france et vous ou architectes-france et un membre de la maitrise d'oeuvre en rapport avec ce projet et qui serait en relation avec architectes-france.

Conformément à la loi « informatique et libertés », vous pouvez exercer votre droit d'accès aux données vous concernant et les faire rectifier en contactant : Architectes-france, 23 avenue du Mirail - parc du Mirail - 33370 Artigues-près Bordeaux. Tél. 05.47.74.51.01 - contact@architectes-france.com