
Extension école maternelle à Béligneux
L’objet du présent projet est de créer une nouvelle extension en partie Est de l’Ecole maternelle située à la Valbonne sur la commune de Béligneux.
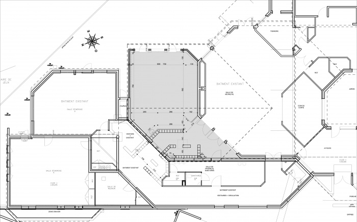
Cette extension se situe dans le retrait de façades laissé libre lors du dernier agrandissement. Cette zone est actuellement une petite cour en enrobé très peu utilisée et parsemée de réseaux enterrés (EU-EP-Gaz).
Le projet propose d’ajouter une salle de classe pour une trentaine d’enfants, avec sa zone de vestiaires attenante et de créer en même temps une liaison entre les deux salles existantes en extrémité Nord et la salle de motricité.
Pour ce faire, le châssis situé en façade Sud-Est, éclairant la zone de vestiaires existante, est déposé pour créer l’accès à l’extension (photo liaison existant et extension). La zone des vestiaires existants est réaménagée afin de retrouver le nombre de casiers initial et de libérer une large circulation, permettant de relier la zone de vestiaires créée. En bout de ce nouveau vestiaire se trouvent la porte d’accès à la salle de classe, la porte des sanitaires et les deux portes de la salle de motricité, qui donnaient dehors sur la cour auparavant.
Cette nouvelle circulation bénéficie d’un éclairage naturel grâce à l’installation d’un grand puits de lumière (photo vestiaire).
La salle de classe de 62m² s’ouvre en façade Est par de grands châssis vitrés, assurant un éclairage naturel suffisant. Elle est traitée avec une architecture simple et ludique proposant un grand volume sous rampant. La couleur est utilisée par touches autant dans les circulations que dans la salle elle-même (photos salle de classe et circulation). L’éclairage y est mis en valeur car suspendu pour assurer un éclairage homogène. Le souci du détail a été porté jusqu’à la mise en œuvre de deux oculi sur la porte d’accès de la salle, l’un à hauteur des enseignants et l’autre à hauteur d’enfants.
L’extension a nécessité la reprise de la couverture de la salle de motricité attenante et le renforcement de sa charpente qui a été moisée (photo salle de motricité).
D’un point de vue technique, la structure de l’extension est composée d’une maçonnerie en moellons de 20cm, positionnée dans la continuité des murs existants, doublée d’une isolation en laine de verre de 16cm, sur les façades donnant sur l’extérieur (Est et Nord).
Le plancher est constitué d’un dallage sur terre-plein d’épaisseur 15cm avec isolation projetée de 10cm et d’une chape liquide. Le faux-plafond est composé de plaques 600x600mm en fibres minérales sur lesquelles est déroulée une isolation en laine de verre de 30cm en deux couches croisées avec pare-vapeur jointoyé étanche.
La toiture est dans la continuité de celle de l’agrandissement côté Est, à deux pans de pente identique (33%), et rejoint la toiture de la salle de motricité créant deux noues et une rive continue avec l’existant.
Des chéneaux sont disposés en bas de pente : les eaux pluviales côté Ouest sont récupérées via la toiture terrasse par deux descentes placées en intérieur dans des caissons et côté Est via deux descentes extérieures.
Le chauffage de la zone de bâtiment a été repris et une nouvelle chaudière gaz installée.
Une ventilation hygro-réglable a été installée pour assurer une bonne qualité d’air dans les espaces créés.