Menu
Un projet réalisé par :Playtime Agence d'Architecture  Architecte à Rillieux-la-Pape

Extension d'une maison à Rilleux

 Rillieux-la-Pape - 69
Playtime Agence d'Architecture
Accueil Projets Extension d'une maison à Rilleux

-Commune : Rilleux-le-pape
-Surface: 65 m²
-Budget HT : 139 000 euros

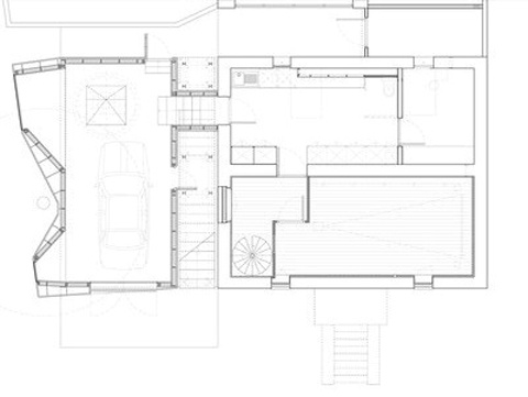
Extension d'une maison à Rilleux

Cette construction s’inscrit sur le terrain au même emplacement que l’ancienne construction, minimisant ainsi l’impact dans son environnement. La volumétrie du bâtiment respecte les gabarits existants. Le projet s’enroule autour de l’arbre existant proposant une insertion calme dans le site. Cette extension a fonction de garage au rez-de-jardin et de terrasse au niveau supérieur. De larges ouvertures sur le jardin laissent pénétrer la lumière naturelle. Les matériaux utilisés tels que le bois et le métal confèrent à la maison une architecture contemporaine tout en préservant le caractère du paysage urbain.

  • Extension d'une maison à Rilleux : 01_Extension Maison Rilleux
  • Extension d'une maison à Rilleux : 02_Extension Maison Rilleux
  • Extension d'une maison à Rilleux : 03_Extension Maison Rilleux
  • Extension d'une maison à Rilleux : 04_Extension Maison Rilleux
  • Extension d'une maison à Rilleux : image_projet_mini_5915
  • Extension d'une maison à Rilleux : 06_Extension Maison Rilleux
  • Extension d'une maison à Rilleux : 07_Extension Maison Rilleux

Trouvez un architecte pour votre projet

Protection de vos données personnelles

Depuis toujours, architectes-france.com ne transfère aucune donnée personnelle à d'autres acteurs que ceux directement concernés par le projet (architectes, architectes d'intérieur...) et qui appartiennent à son réseau. Nos listes ne sont jamais transmises ou vendues à des partenaires extérieurs, même si ceux-ci appartiennent au domaine de la construction.
Toute modification dans ce domaine ne serait effectuée qu'avec votre consentement.

Je consens à ce que mes données personnelles soient collectées pour permettre à architectes-france de transférer votre projet aux architectes. Seul Architectes-france, ses équipes internes et la maitrise d'oeuvre concernée par le projet y ont accès. Aucune transmission de données à des tiers à l'exclusion de ceux décrits ci dessus n'est réalisée.

Mes données téléphoniques seront uniquement utilisées par Architectes-france.com et les architectes de notre réseau dans le cadre de la qualification et du suivi de mon projet.

Les données sont conservées pendant une durée de 18 mois courant à partir des derniers contacts effectifs entre architectes-france et vous ou architectes-france et un membre de la maitrise d'oeuvre en rapport avec ce projet et qui serait en relation avec architectes-france.

Conformément à la loi « informatique et libertés », vous pouvez exercer votre droit d'accès aux données vous concernant et les faire rectifier en contactant : Architectes-france, 23 avenue du Mirail - parc du Mirail - 33370 Artigues-près Bordeaux. Tél. 05.47.74.51.01 - contact@architectes-france.com

Trouvez un architecte pour votre projet

Protection de vos données personnelles

Depuis toujours, architectes-france.com ne transfère aucune donnée personnelle à d'autres acteurs que ceux directement concernés par le projet (architectes, architectes d'intérieur...) et qui appartiennent à son réseau. Nos listes ne sont jamais transmises ou vendues à des partenaires extérieurs, même si ceux-ci appartiennent au domaine de la construction.
Toute modification dans ce domaine ne serait effectuée qu'avec votre consentement.

Je consens à ce que mes données personnelles soient collectées pour permettre à architectes-france de transférer votre projet aux architectes. Seul Architectes-france, ses équipes internes et la maitrise d'oeuvre concernée par le projet y ont accès. Aucune transmission de données à des tiers à l'exclusion de ceux décrits ci dessus n'est réalisée.

Mes données téléphoniques seront uniquement utilisées par Architectes-france.com et les architectes de notre réseau dans le cadre de la qualification et du suivi de mon projet.

Les données sont conservées pendant une durée de 18 mois courant à partir des derniers contacts effectifs entre architectes-france et vous ou architectes-france et un membre de la maitrise d'oeuvre en rapport avec ce projet et qui serait en relation avec architectes-france.

Conformément à la loi « informatique et libertés », vous pouvez exercer votre droit d'accès aux données vous concernant et les faire rectifier en contactant : Architectes-france, 23 avenue du Mirail - parc du Mirail - 33370 Artigues-près Bordeaux. Tél. 05.47.74.51.01 - contact@architectes-france.com