
Construction d'une maison individuelle à RICHELING (57)
Richeling - 57Ce projet concerne la construction d'une maison individuelle dans un petit village de Moselle près de Sarreguemines.
Maître d'ouvrage : Privé
Budget : 190 000 €
SU neuf : 190 m²
Calendrier : Etudes en cours
La parcelle se site dans la partie Nord-Est de la commune de Richeling, à l'écart du centre village. La zone est actuellement caractérisée par un bâti peu dense, plusieurs parcelle étant conservées en vergers ou en jardin.
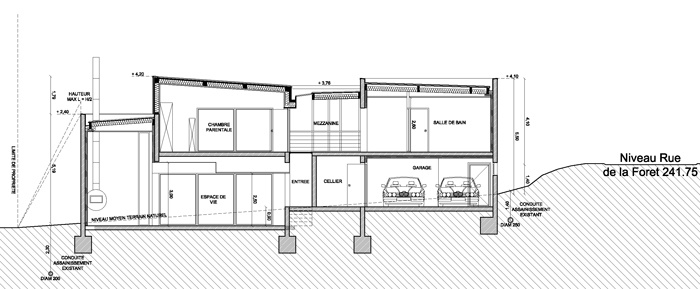
La parcelle se distingue par sa forte déclivité. Cette contrainte ne permet pas d'implanter l'accès à la maison depuis la Rue de la Forêt, puisque cela imposerait une remblaiement trop important du terrain naturel.
Afin de ne pas édifier une construction trop haute par rapport à son environnement, le niveau d'accès de la maison est en contrebas du niveau de la rue de la forêt.
Ce choix permet d'une part d'intimiser les accès en les localisant le long de l'impasse des Vergers, et d'autre part de fonder la maison dans le sol naturel sans talutage du terrain.
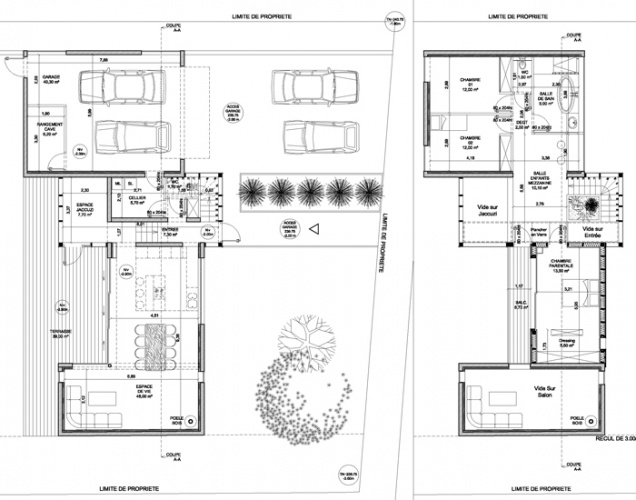
Les accès à la maison sont centralisé le long de l'Impasse des Vergers.
En partie haute, un accès mène au garage double, tandis qu'en partie basse, se trouve l'accès aux pièces de vie.
De plus, les volumes de la maison sont clairement différentiés, afin de permettre une organisation en demi-niveau entre l'accès et le rez-de-jardin, ce qui favorise également l'implantation dans le sol naturel fortement pentu.
Le niveau bas de la maison est ainsi scindé en deux entités: la partie garage et locaux d'entrée situés au niveau -1,40 m par rapport au niveau de la Rue de la Forêt, et la partie salon, salle à manger et cuisine au niveau -2,30 m.
En revanche, le niveau de l'étage est identique pour l'ensemble des pièces (+1,20 m par rapport à la Rue de la Forêt).
La maison propose un découpage de la construction en plusieurs volumes traités de manières différentes. Le volume le long de la rue (comprenant le garage en partie basse, les chambres d'enfants à l'étage) sera traité en béton peint en blanc, reprenant les teintes des maisons avoisinantes. Le volume central, dans lequel se trouvent les circulations du projet, sera entièrement composé de vitrage à transparence variable. Le volume du salon et de la chambre des parents sera traité en béton brut, béton peint en blanc et en bois.
-
-
PLAN DE MASSE
-
PLANS DES NIVEAUX
-
COUPE
-
-
PERSPECTIVES
VUES AERIENNES