
Construction d'une maison contemporaine à Sélestat (67)
Construction d'une maison individuelle sur une parcelle isolée à Sélestat (67) issue du redécoupage de la parcelle des parents et respectant la réglementation RT 2012
La parcelle se situe dans la partie Nord Est de la commune de Sélestat, en bordure extérieure du centre ville. L'accès de la future maison individuelle se fait depuis cette rue par l'intermédiaire d'une desserte en servitude de passage pour 3 parcelles, suite à un redécoupage cadastral récent.
L'unique accès étant la desserte en servitude de passage, dont la position débouche sur la limite Ouest au milieu, l'implantation des volumes se fait le long de la limite séparative Nord, afin de dégager une vue principale vers le Sud.
Le projet s'implante avec un recul de 3,50 m le long des limites séparatives, hormis pour le volume du garage, rendu indépendant par son positionnement en limite Nord.
Ce choix d'implantation permet de limiter l'emprise des accès piéton et automobile sur la parcelle, pour offrir un maximum de surfaces végétalisées à la maison, en partie Sud.
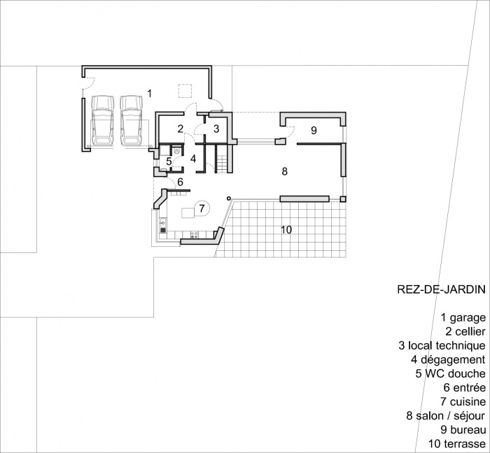
La maison est en « L » autour d'une terrasse orientée vers le Sud.
Elle est composée d'un volume principal sur deux niveaux, et de volumes secondaires pour le garage et la partie cuisine, traités de manière différente en terme de matérialité.
Le volume principal, implanté en long selon un axe Est-Ouest, en recul de la limite Nord de 3,50m, comprend les pièces techniques, l'entrée, un sanitaire, le salon, la salle à manger et la cuisine ainsi qu'un bureau.
A l’Étage, il comprend 3 chambres, une salle de bain, un sanitaire et une buanderie et reçoit un toit monopente en tuile teinte anthracite.
Les volumes annexes regroupent au Nord-Ouest le garage, et au Sud une excroissance de la cuisine.