
Centre de Secours et d'Incendie de SCHWINDRATZHEIM (67)
Schwindratzheim - 67Ce projet concerne la construction d'un petit Centre d'Incendie et de Secours pour des pompiers volontaires.
Architecte associé : COYDON Stéphane
Maître d'ouvrage : S.D.I.S. Du bas-Rhin
Budget : 0,2 M€ H.T.
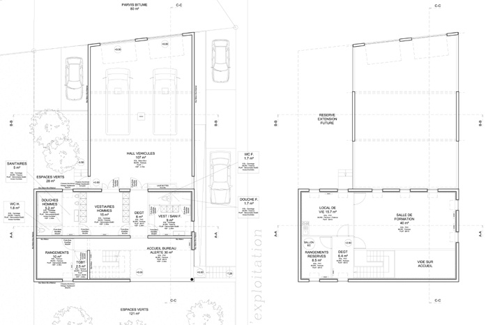
SU neuf : 256 m²
Calendrier : livraison décembre 2007
Le site se caractérise pas sa forte déclivité (2,20 m sur la longueur de la parcelle). Il se situe en bordure de deux chemins d'exploitations et s'intègre dans un projet global regroupant le centre de secours et les ateliers municipaux.
Le projet est implanté dans le sens de cette pente pour assurer la sortie rapide des véhicules d'intervention vers le chemin d'exploitation et la future rue qui sera située plus au Nord.
Cette position en promontoire par rapport au terrain naturel permet de donner une vue vers le panorama depuis le hall et le bureau d'accueil ouvert.
Un bardage bois en partie haute et des éléments en béton préfabriqué matricé pour la partie basse, reprennent l'écriture architecturale du bâtiment des ateliers municipaux, afin de créer un ensemble cohérent.
Ces éléments rappellent les nombreuses façades des hangars agricoles avoisinants, et respectent les teintes naturelles présentes dans le village.
Le Centre de Secours est conçu comme un ensemble fonctionnel compact constitué d'un volume simple avec toiture à deux pans à 45° pour la partie vie au Sud et d'une toiture plate pour le garage véhicules au Nord.
-
-
-
-
PLANS
-
-
VUES PERSPECTIVES