
Bâtiment Associatif et Réamménagement d'une Place à STEINBACH (68)
Steinbach - 68Ce projet concerne la construction d'un bâtiment associatif pour 3 associations et le réaménagement d'une ancienne zone de mines de potasse datant du 16ème siècle.
Architecte associé : COYDON Stéphane
Maître d'ouvrage : Communauté de Communes de Cernay et environs
Budget : 0,26 M€ H.T.
SU neuf : 150 m² + 1500 m² extérieurs
Calendrier : livraison fin 2009
La place existante ne peut pas être considérée comme telle dans la mesure où une certaine anarchie s'est créée naturellement par l'adjonction des activités avec le temps.
Pour remédier à ce manque d'ordre, nous proposons la mise en place d'une « artère » dans le sens longitudinal du site, composée d'un seul matériau sur lequel viendraient se greffer les activités.
Le long de cette « artère » se déroulent les différents espaces qui composent la place :
Une zone de parking de 16 places dès la sortie du virage est re-dimensionnée.
Une zone de jeux d'enfants est déplacée vers l'avant pour assurer une surveillance plus optimale par les adultes.
La place n'étant pas terminée dans sa perspective, nous proposons d'implanter le bâtiment associatif de manière à composer réellement cet espace.
Il vient donc s'implanter entre les bâtiments d'activité de l'association Harmonie et l'auditorium extérieur. Un espace conséquent est conservé en face de l'auditorium pour le public. Une zone de tables et chaises vient s'implanter entre la nouvelle buvette et l'auditorium.
La terrasse actuelle au dessus du puit de mine est conservée et aménagée en fontaine, symbole de la présence de l'eau dans le sous-sol.
Le bâtiment associatif est pensé de manière à proposer deux terrasses, l'une vers l'auditorium qui accompagne la buvette, l'autre vers l'entrée de la mine qui accompagne les salles associatives.
-
-
VUE DE LA PLACE REAMENAGEE
-
VUES DU BATIMENT ASSOCIATIF
-
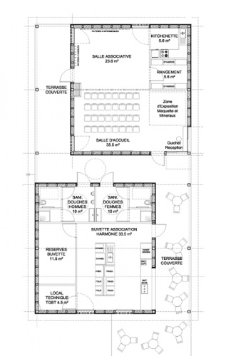
PLAN DU BATIMENT ASSOCIATIF
-
-
-
-
VUE GENERALE DU SITE